
Mise en conformité ERP & PMR d’une boutique de jeux
Mise en conformité ERP & accessibilité – boutique The Maple Shop (44)
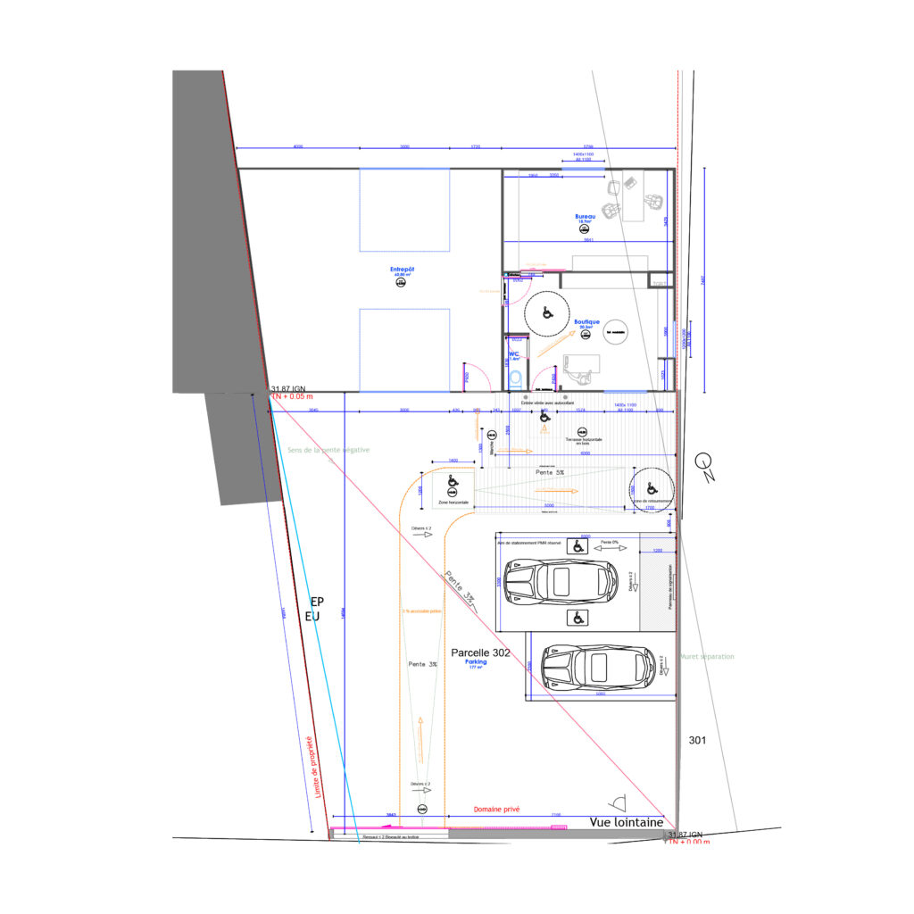
Mise en conformité d’un local commercial pour un changement de destination en établissement recevant du public (ERP 5e catégorie – type M).
Création d’une terrasse bois et d’une rampe d’accès PMR en façade, accompagnée de la notice de sécurité-incendie et d’accessibilité pour le dossier d’autorisation de travaux en mairie.
Maîtrise d’ouvrage
Projet Professionnel Alexandre
Surface
40 m²
Avancement
Dossier livré juillet 2025







Les images illustrent l’intention du projet et ne sont pas contractuelles.